SM-65 Atlas F ICBM Squadron, Walker AFB, Roswell, New Mexico 1961-1965
Documents
Diagrams, News Articles, Histories, Manuals, etc.
Following is a series of documents and images pertaining to the 579th SMS. There are different sections including news articles, diagrams, construction, operational and historical documents, etc. Many of the documents on this page are in Adobe PDF format and are freely available to download. All PDF files have been made searchable when possible. To save the file to your local device, right click the PDF file name or image and choose the "Save Target As " option. If you should have any documents relating to the 579th SMS or the Atlas ICBM program that you would consider sharing, please contact us so that they can be added to this page.
NOTE: Some of these files may be large in size and may take a minute to open. Please be patient while they download to your device.
Blueprints
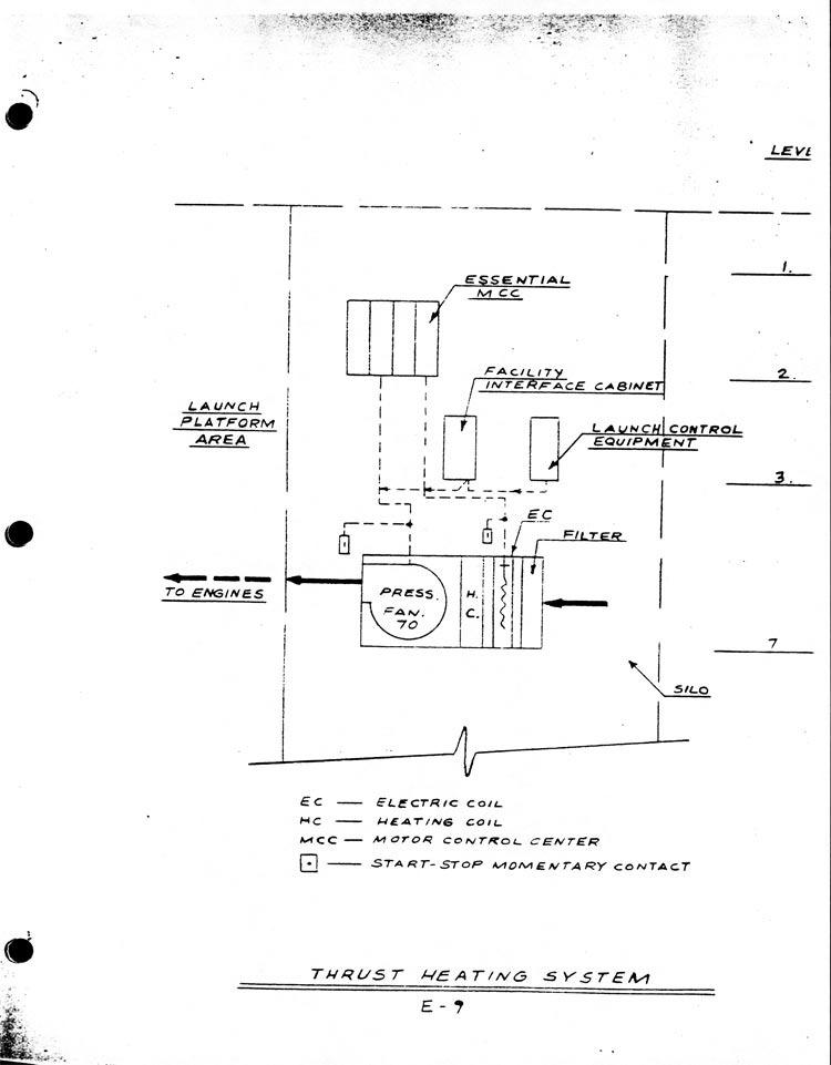
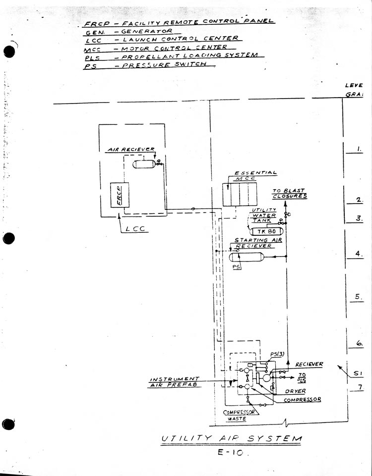
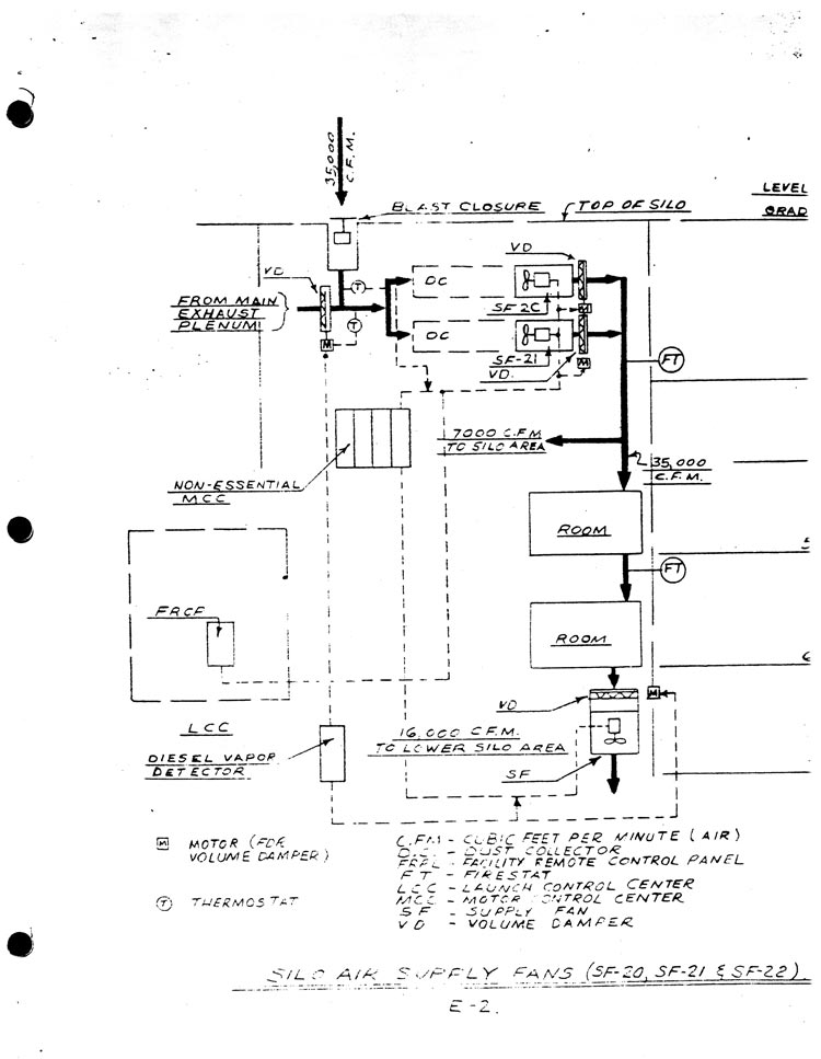
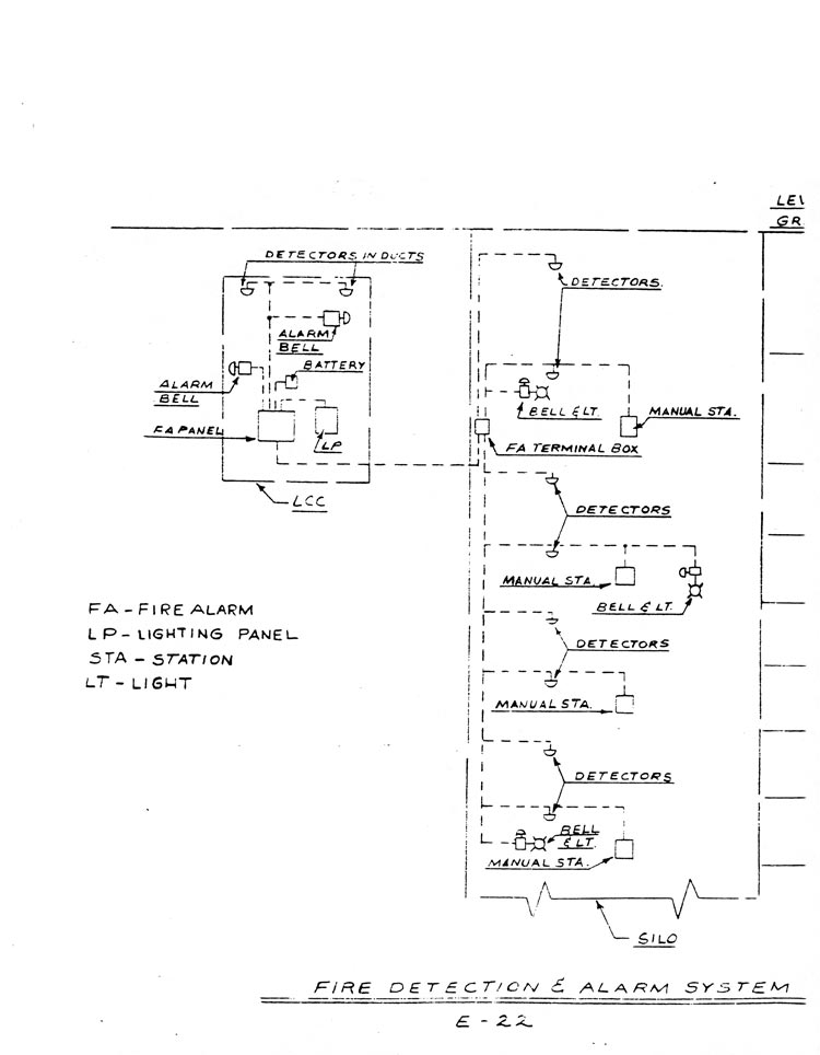
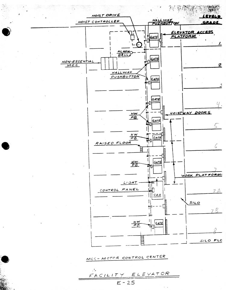
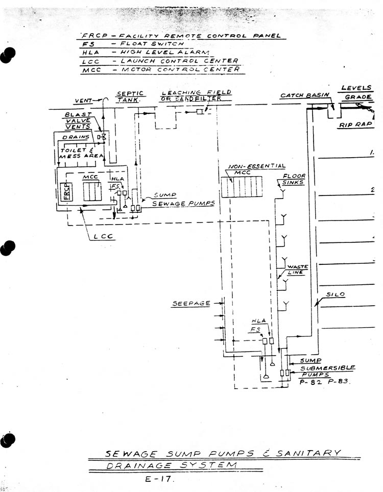
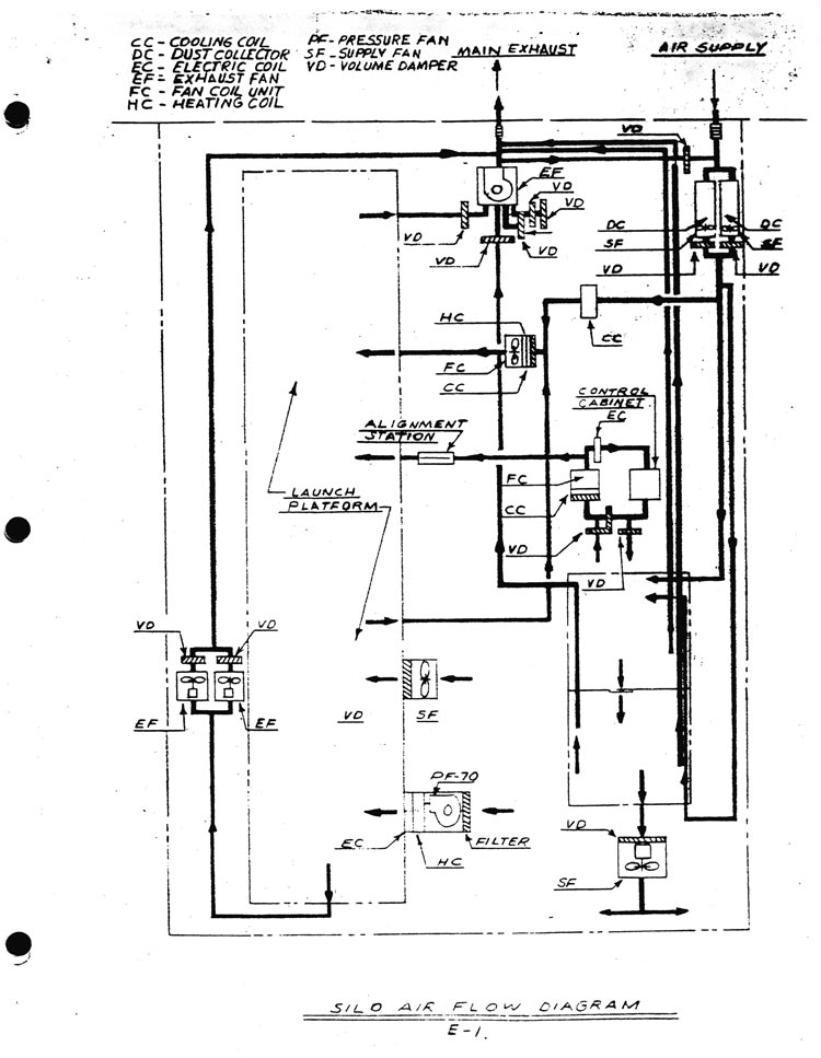
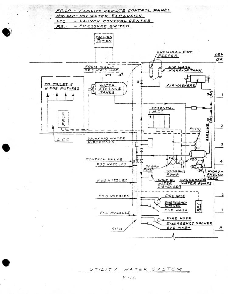
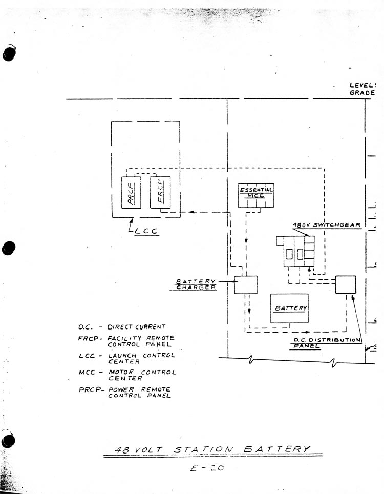
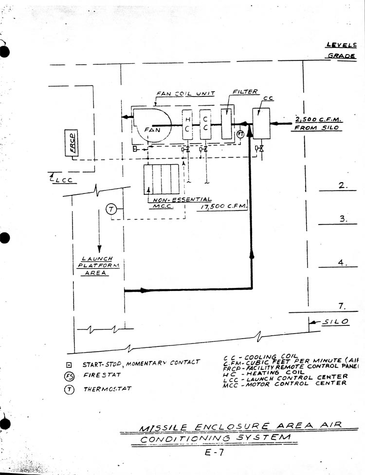
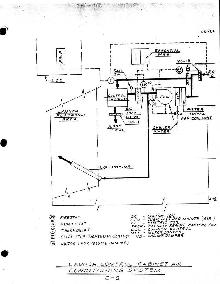
Diagrams
Development
Theory Of Operation Of Inertial Guidance System
Silo Full Scale Mockup Photographic Record - Volume1
Mechanics Illustrated (May 1955) - I Bring Massacre
Press Release - Atlas Fact Sheet (1958)
Development Of Ballistic Missiles In The USAF - 1945-1960
SAC Missile Chronology 1939-1988
Construction
Integrating Contractors Base Activation Project Manual
Aerospace Historian - September 1982 - ICBM Site Activation
Operational
Site 1 Silo Explosion Article With Photo - 6/3/1963
Site 1 Silo Explosion Article - June 1963
Site 1 Silo Explosion Article With Photo - June 1963
Site 1 Silo Explosion Article - Fire Under Control - June 1963
Missile-Anea Article - 8/20/1964
579th SMS Unit History - January 1962
579th SMS Unit History - February 1962
579th SMS Unit History - May 1962
579th SMS Unit History - June 1962
579th SMS Unit History - July 1962
579th SMS Unit History - August 1962
579th SMS Unit History - September 1962
579th SMS Unit History - November 1962
579th SMS Unit History - January 1963
579th SMS Unit History - February 1963
Atlas F T.O. Manual - 21M-HGM16F-1 "Dash One"
Abbreviated Check List - DMCCC
Abbreviated Check List - Emergency Procedures
GD/A Report AP60-1045 - Ground Support Equipment List
GD/A Report AP60-1046 - Ground Operational Equipment List
Silo Familiarization Guide - September 1962
Deactivation
AFLC Phaseout Atlas E F Titan1
History Of Atlas E F Titan1 Phaseout
SBAMA Phaseout Atlas E F Titan1
USAF Plan of Action for the Phase-Out and Disposition of Atlas E, Atlas F and Titan1
Atlas F Deactivation Procedure A109
SBAMA Equipment Removal Plan - AtlasF
What We Are Doing With Surplus ICBM Complexes

Outdated Missiles Placed In Storage
Present Day
Museum Grant And Display Letter to Crews
Squadron Newsletters
579th SMS Newsletter - July 2000
579th SMS Newsletter - Volume 1 - Spring 2005
579th SMS Newsletter - Volume 2 - Summer 2006
579th SMS Newsletter - Volume 3 - Fall 2007
579th SMS Newsletter - Volume 4 - Fall 2008
579th SMS Newsletter - Volume 5 - Fall 2010
579th SMS Newsletter - Volume 6 - Fall 2012
579th SMS Newsletter - Volume 7 - Summer 2014
579th SMS Newsletter - Volume 8 - May 2016
Miscellaneous
Atlas E/F Launch Vehicle - Unsung Workhorse
SAC Missile Chronology 1939-1988
Student Research Report - Missileer's Heritage
To Defend And Deter - Legacy Of U.S. Cold War Missile Program
Lawsuit - 1961-63 Atlas Fuel Tank Helium Pressure Regulator
RAND Corp - Project Air Force (1946-1996)
Top

















































